Asunnoissa on asuntokansio, jossa kerrotaan tarkemmin kyseisen asunnon ominaisuuksista ja laitteista. Kansio tulisi pitää päivitettynä, poistaen sieltä vanhat tiedotteet ja lisäämällä mahdolliset uudet tiedotteet.
Kiinteistön alueella tupakointi on kielletty ulko- ja sisätiloissa 1.8.2022 jälkeen tehdyissä vuokrasopimuksissa.
Elisan laajakaista (10 Mt) kuuluu vuokraan ja on saatavilla keskustan ja Ahonkylän kohteisiin.
Laajakaistan ja kaapelitelevisioverkon uudistus on käynnissä!
- Vaihdamme Lounean valokuituverkkoon, joka tuodaan asuntoon asti. Asennukset toteutetaan vuosina 2024–2026. Tämä uudistus toteutetaan myös Koskenkorvalle, jossa aiemmin ei ole ollut saatavilla laajakaistaa eikä kaapelitelevisiota.
- Ilmoitamme asennusajankohdasta asukkaille kiinteistöittäin.
- Lounean käyttöönotosta, hinnoista ja muista yksityiskohdista sovitaan suoraan palveluntarjoajan kanssa.
- Samalla kaikki kohteet siirtyvät kaapeli-tv:n piiriin, mikä parantaa tv-signaalin vakautta antenniverkkoon verrattuna.
Asumisopas pdf-versiona: Asumisopas 2021 päivitys
Ohje autojen pysäköintiin ja ajoon kiinteistöllä

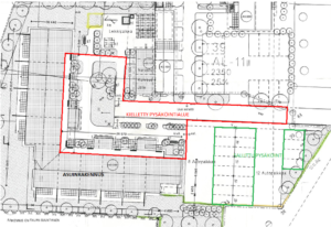
Esimerkkikuvan tarkoituksena on näyttää alueet, joissa pysäköinti ja ajo ovat kiellettyjä (punainen alue) sekä alueet, joissa ne ovat sallittuja (vihreä alue). Asukkaat ovat vastuussa siitä, että heidän vieraansa noudattavat samoja ohjeita kuin asukkaat itse.
Ajo pelastusreittien kautta on kielletty, sillä se häiritsee muita asukkaita ja vahingoittaa maata, mikä voi johtaa kuraisuuteen ja kuoppien syntymiseen. Kiinteistölle ajoon tarkoitetut liittymät tulee aina käyttää pelastusreitin läpi oikaisemisen sijaan.
Pelastustiet
Pelastusteiksi lasketaan kaikki reitit, jotka johtavat yleiseltä tieltä talon edustalle. Lisäksi pelastusteiksi luokitellaan talon edessä kulkeva käytävä.
? Pelastustielle ei saa pysäköidä ajoneuvoja eikä kasata lunta. Sinne ei myöskään saa sijoittaa valaistuspylväitä, istutuksia tai muita esteitä, jotka voivat haitata liikennettä.
? Asukkaat ja heidän vieraansa voivat vaikuttaa palokunnan toimintamahdollisuuksiin ja asukkaiden turvallisuuteen pitämällä pelastustiet aina vapaina.
? Pihalle väärin pysäköityjä ajoneuvoja voidaan valvoa esimerkiksi huoltoyhtiön ja poliisin yhteistyöllä.
? Pelastusteihin liittyvissä asioissa neuvoja saa paikalliselta pelastusviranomaiselta. Jos tarvitset tarkempia ja paikkakuntakohtaisia ohjeita, ole yhteydessä paikalliseen pelastusviranomaiseen.
Pysäköinti
Ajoneuvojen pysäköinti on sallittu ainoastaan merkityillä pysäköintialueilla. Pysäköintipaikat on yleensä helppo tunnistaa, sillä niillä on ajoneuvojen lämmitystä varten varustetut pistoketolpat.
Lämmitystolppapaikkoja käytettäessä tulee huomioida seuraavat asiat:
❌ Sisätilanlämmittimien käyttö on kielletty.
✅ Sähköjärjestelmä ei ole mitoitettu suurille kuormituksille, joten sisätilanlämmittimien käyttö voi aiheuttaa sulakkeiden palamisen.
⚠️ Jos sulakkeet palavat, koko pysäköintialueen sähköt voivat mennä pois käytöstä, mikä estää autojen lämmittämisen, kunnes vika korjataan.
Jäteastioiden läheisyys
Jäteastioiden lähettyville ei saa pysäköidä ajoneuvoja, sillä jäteautot veloittavat käynnistä, vaikka astioita ei voitaisi tyhjentää. Tämä aiheuttaa turhia lisäkustannuksia ja jäteastioiden täyttymistä.
Pysäköintitilanne ja tulevat ratkaisut
Ymmärrämme, että joillakin kiinteistöillä ylimääräisistä autopaikoista on pulaa, mikä voi johtaa virheellisiin pysäköintiratkaisuihin. Toivomme kuitenkin, että huomioitte pelastussäännöt ja muut asukkaat pysäköidessänne.
Pyrimme lisäämään pysäköintipaikkoja mahdollisuuksien mukaan tietyille kiinteistöille.